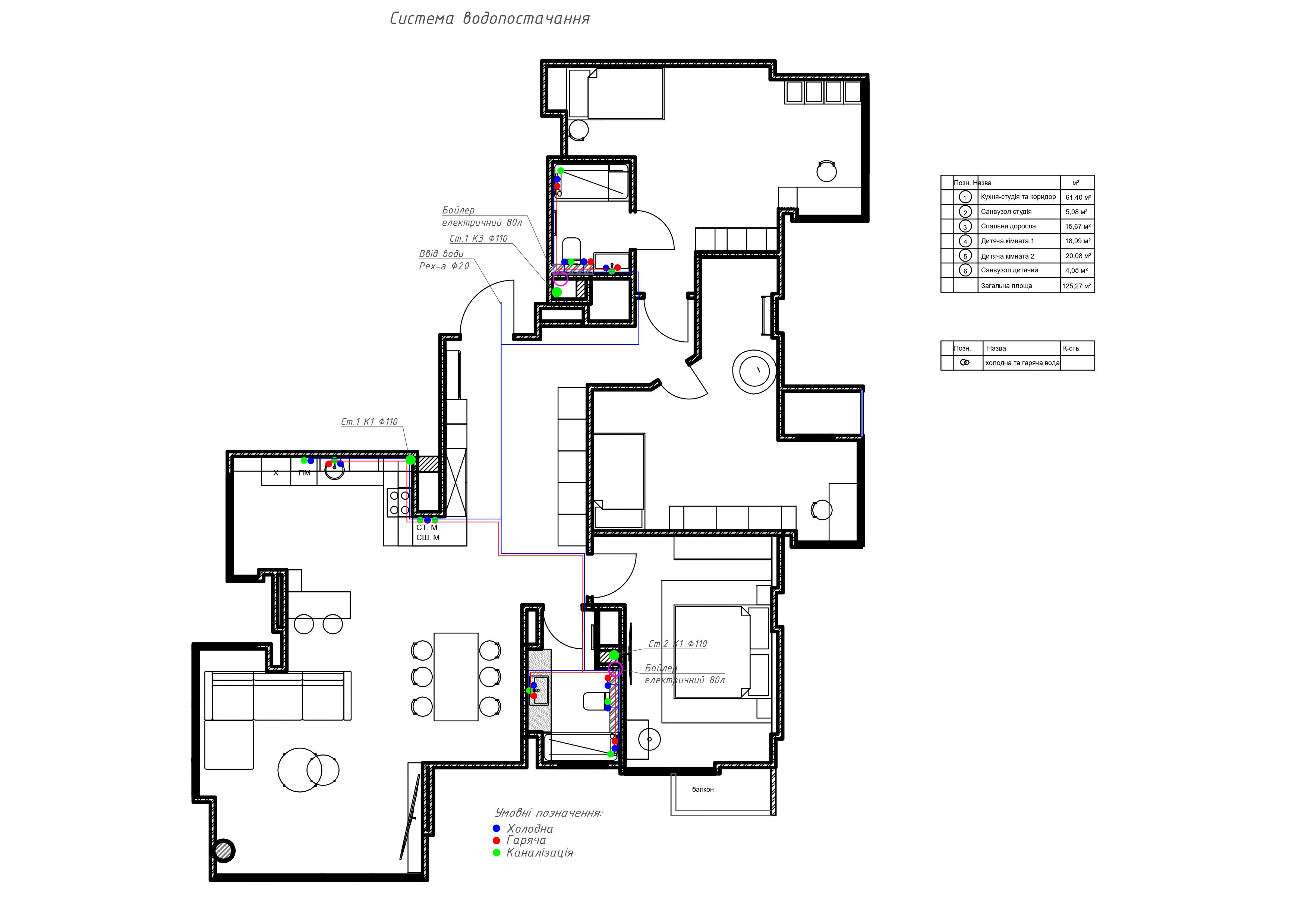
Площа приміщення становить 110 квадратних метрів. Виконано встановлення теплої водяної підлоги з індивідуальним регулюванням завдяки спеціальним терморегуляторам, управління яких здійснюється через бездротову мережу. Для нагрівання гарячої води використовуються бойлери від Thermex та Gorenje, обсягом по 80 літрів кожен.





