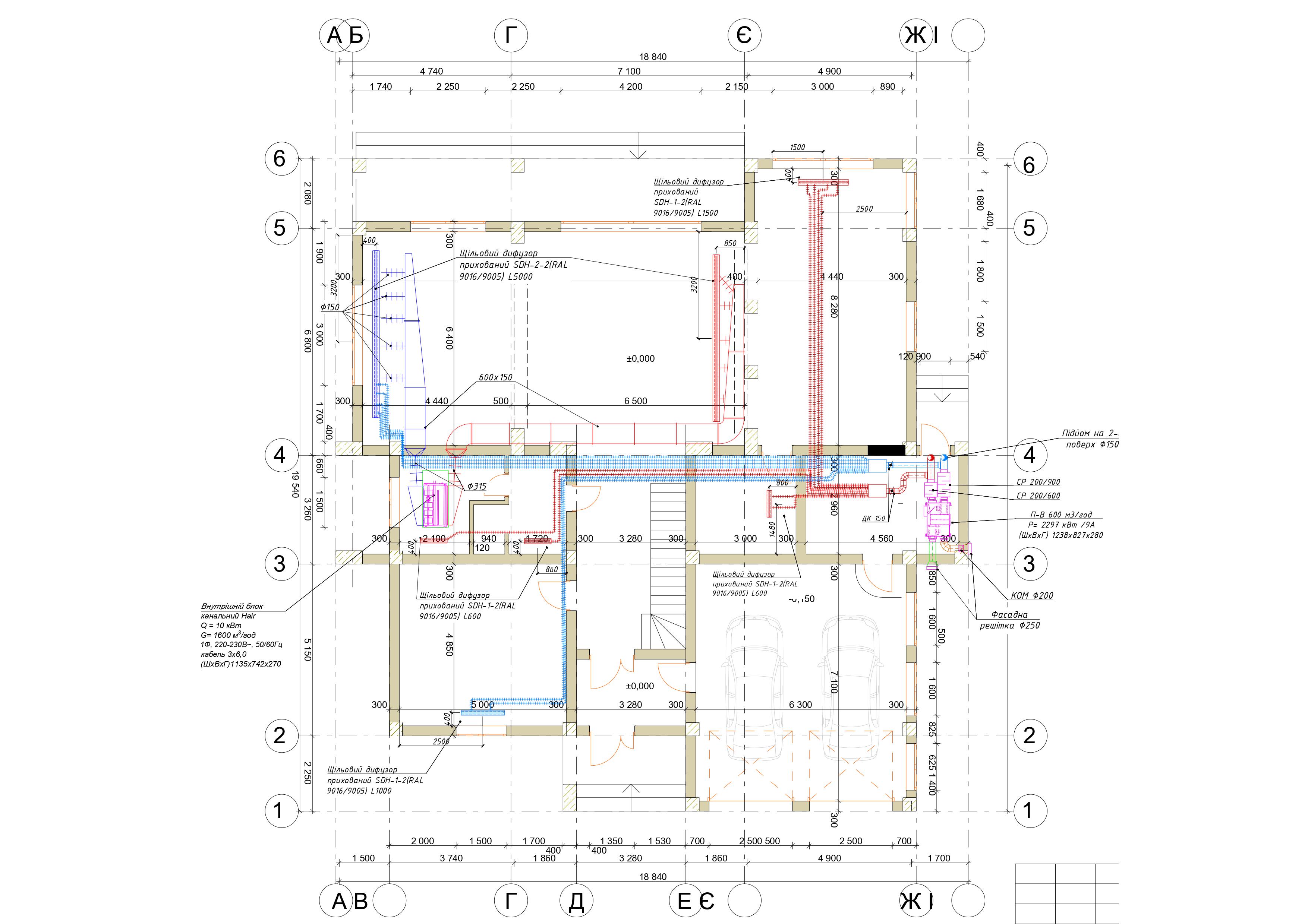
У цьому будинку ми розробили та встановили систему вентиляції з припливно-витяжною функцією, а також рекуперацією тепла; і кондиціонери Haier канального типу та мультиспліт-систему. Змонтована система буде використовуватися для охолодження, опалення у поєднанні з водяним опаленням, як єдине ціле. Повітря подається через вбудовані у стелю дифузори і проходить спеціальний етап очищення. Кожна кімната оснащена окремим управлінням кондиціонерів. Вся конструкція працює на максимальний рівень відновлення тепла до 90%. Це відбувається за допомогою спеціальному пластинчастому рекуператору з полістиролу.





